Банные печи своими руками: пошаговый алгоритм сборки из кирпича и горизонтальной трубы для дымохода печки с баком для воды
Очень важная вещь для каждого русского человека– баня, а в ней самое главное — печь. Чтобы изготовить печь своими руками, надо очень тщательно выбрать материалы.
В первую очередь, кирпичи высокого качества
Они должны быть хорошо обожженными, без каких либо дефектов. Если кирпич недожженный, он не издает звонкого звука при постукивании по нему. На нем не должно быть никаких трещин, все углы и грани должны быть прямыми.
Для оборудования топки нужен жаропрочный кирпич, по-другому шамотный. Кроме этого нужен песок хорошего качества, не слишком крупный и не мелкий, без примесей. Для печей в банях не используется цемент, поэтому нужна специальная глина подобающего качества.
Для печи нужен отдельный фундамент
Он закладывается на такую же глубину как фундамент самой бани. Чтобы постройка была долговечной, очень важно, чтобы все было сделано по правилам.
- Сначала роют котлован, на его дно засыпают песок, обильно смачивают водой, затем кладут битый кирпич и камни примерно на 15 см высотой.
- Затем все это укрывают щебенкой. Строят опалубку и заливают бетоном.
- Через несколько дней, после того как застынет бетон, опалубку убирают. Сверху закрывают рубероидом для гидроизоляции.
Фундамент будет доходить до нужной кондиции несколько дней. В это время стоит обдумать, откуда сделать топку. Она может быть как внутри, в самой парной, так и с прилегающей комнаты.
Если оставить топку в комнате отдыха, она будет нагреваться без дополнительных усилий. А когда топка в парилке, нужно, чтобы она была направлена в сторону двери для достаточного притока воздуха.
Защита стен от нагрева
Надо решить, будет она из асбестовых плит или из кирпича. Без такой дополнительной защиты стены, около которых будет печь, могут загореться.
И если уже точно решено делать печь своими руками, нужно посмотреть печи соседей, знакомых. Чтобы увидеть, как сделаны, по какому принципу работают.
Разновидности печей
Хоть сейчас и существуют различные варианты печей на газу, на электричестве, все же лучшей считается печка на дровах. Можно приготовить каркас путем сварки стали толщиной 4-5 мм и обложить огнеупорным кирпичом. Но если вы не сварщик, легче будет сделать печь кирпичной.
До того как начать выкладывать кирпичи, на фундаменте нужно сделать стяжку. Нужно отметить, что размер печи должен быть меньше, чем размер фундамента.
Подготовка к началу кладки
Так как очень важно, чтобы все стены были ровными, не было щелей и зазоров, рекомендуется сложить кирпичи сначала всухую.
- Плотно подогнать, где нужно отбить, подравнять.
- Если где-то будет зазор побольше, это будет место для потенциальной утечки дыма и угарного газа.
- Поэтому все кирпичи тщательно подогнать друг к другу, проверить отвесом и уровнем стены.
- Затем все кирпичи пронумеровать по местам.
- Проверку уровнем и отвесом проводить потом неоднократно во время основной кладки кирпича.
Основная работа
Глина замочена на три дня, песок просеян. Нужно замесить раствор по густоте как жидкая сметана. Положить один ряд на цементном растворе, идеально выровнять и положить на этот ряд рубероид. Дальше цемент использоваться не будет, используется только глиняный раствор.
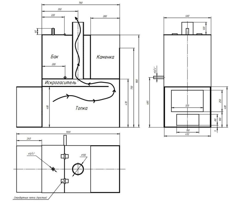
Укладка начинается с ряда, в котором будет оставлен люк для уборки колодца.
- Над ним будет ряд с коридором колодца и второй люк и люк поддувала. Делаются канавки в кирпичах, чтобы закрепить люки проводом в 0.3 см. В следующих рядах (3-4) подводится отделение для камеры с золой.
- После этого, перед тем как уложить следующий ряд, пятый по счету, нужно разместить решетку колосника. Вокруг обязательно оставить место для увеличения при нагревании.
- Колосник и камни расширяются и увеличиваются при нагреве на разные величины, и это может привести к образованию трещин, если не оставить зазоры. А это в свою очередь может привести к утечке дыма или угарного газа.
- Затем поставить резервуар для воды, дальше на него разместить люк топки. Люк и емкость для воды отгородить асбестом. Асбестовые листы предохраняют от перегрева. Следующие три ряда кирпичей обкладывают люк и емкость для воды.
- Задвижка размещается на девятом и десятом ряду. Здесь же размещается плита из чугуна под каменку. Следующий ряд завершает кладку печи и начинает сооружение трубы.
Еще десять рядов кирпичей это труба. Здесь нужно помнить, что труба изнутри должна быть ровной, чтобы нигде не могла собираться сажа и затруднять выход дыма. Чтобы не было опасности нагрева и возгорания, труба нигде не должна соприкасаться с крышей.
Подготовка кирпичной печи к работе
После завершения работ по кладке, печь не может использоваться по назначению сразу. Ее надо тщательно просушить.
Для этого в течении двух недель растапливать печь регулярно потихоньку щепой, пока она не просохнет окончательно.
Простейшая печь из металлической трубы
Считается, что банный пар вкуснее, когда печь кирпичная. Но у железной печи есть преимущество. Она быстрее нагревается. (Хотя и остывает тоже быстрее.)
Металлическая труба как материал для банной печи. Чтобы сделать пригодный вариант, нужно чтобы толщина металла была около 0.8 см.
- Трубу, которая будет использована горизонтально, нужно взять 0.7 м в длину и внешним диаметром 0.5 м. Внутри размещается чугунный колосник.
- При необходимости его можно будет доставать, чтобы вычищать печь. В 50мм от края по диагонали от колосника нужно вырезать отверстие для дымохода.
- Туда вставляется труба и приваривается. Торцы бочки закрываются листами, которые сверху вырезаются в форме полукруга, а нижняя часть оставляется такой же, чтобы быть подставкой.
- Петли для дверей можно сделать загнув куски арматуры, можно купить готовые. В торце трубы нужно сделать отверстие 150мм на 250 мм.
- Лоток размерами 350мм-250мм-150мм приваривается под колосник. В отверстие в торце устанавливают совок для золы.
- Он будет работать регулятором тяги. Наверху сооружения нужно будет приварить емкость для камней. И конечно же сбоку поставить бак для нагрева воды.
Самые долговечные и удобные емкости для нагрева воды в бане делаются из нержавейки. Имеют только один минус, высокую цену.
Камни для каменки
Из какого материала бы не была сделана печь для бани, очень важной составляющей хорошего и вкусного пара являются камни на каменке. К их выбору тоже надо относиться очень серьезно. Ведь главное отличие русской бани от сауны, это пар. Полезный влажный жар в бане получается



























































































































